こだわりリフォーム。
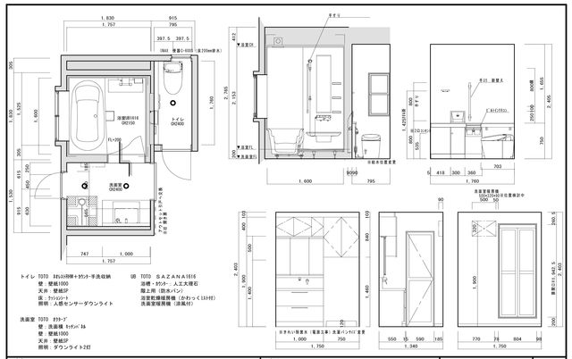
洗面室に続いて、トイレ空間の事例をご紹介します。
良くある、手洗いタンク付き便器をご使用だったお客様。
ご高齢になられて、排泄後手を洗うの動作をシンプルにするために
手洗い器を入口横に設置したいとのご要望でした。
。。。。。。。

気に入られたのは、収納カウンターや電子リモコン付きの
「TOTO レストルームドレッサーシステムシリーズ」
なんと!定価は 93万円!!
便器はもちろんタンクレストイレの 「ネオレストRH」
。。。。。。
手洗いカウンターは、
選定するアイテムやオプションで組立するシリーズ。
最高級の扉材や、クリスタルカウンター

電子リモコン付きとハイスペック

さらに、手洗い器の給排水の新配管は、
隣の浴室ユニットバスも交換するので、壁裏から配管する事が出来ました。


浴室との隙間を利用して、収納部も既成サイズより
洗面室に続いて、トイレ空間の事例をご紹介します。
良くある、手洗いタンク付き便器をご使用だったお客様。
ご高齢になられて、排泄後手を洗うの動作をシンプルにするために
手洗い器を入口横に設置したいとのご要望でした。
。。。。。。。

気に入られたのは、収納カウンターや電子リモコン付きの
「TOTO レストルームドレッサーシステムシリーズ」
なんと!定価は 93万円!!
便器はもちろんタンクレストイレの 「ネオレストRH」
。。。。。。
手洗いカウンターは、
選定するアイテムやオプションで組立するシリーズ。
最高級の扉材や、クリスタルカウンター

電子リモコン付きとハイスペック

さらに、手洗い器の給排水の新配管は、
隣の浴室ユニットバスも交換するので、壁裏から配管する事が出来ました。


浴室との隙間を利用して、収納部も既成サイズより
壁埋め込み加工を大工さんにお願いして
奥行きを150mmに拡張、トイレットパーパーも
ストック出来る様になりました。

壁紙は、扉ラメ入りベージュ色、クリスタルカウンターと
コーディネートした、エレガントな花柄を前面に貼りました。

写真ではわかりにくいですが。。サンゲツ壁紙。
淡いブルーとベージュの花柄。エンボスが光沢が有り美しい壁紙です。
。。。。。。。。。。
洗面室とバスルームと共に、ラグジュアリー空間へと完成です。


。。。。Before。。。。

さすが、ハイクラスのトイレシリーズ。
ショールームのようなトイレ空間になりました。
:::::::
ブログランキングに参加しています。
ボタン↓↓↓ ぽちっと押してくださると嬉しいです。

++++++++++++++++++++++++++++++++++++++++++++++++++++++
Construction by:Best Planning Corporation ■
++++++++++++++++++++++++++++++++++++++++++++++++++++++
rises インテリアデザイン室
http://rises.jimdo.com/
rises.keiko@gmail.com
www.facebook.com/rises.INTERIOR
リフォームプラン・造作家具&収納設計・risesサロン・施工手配管理
++++++++++++++++++++++++++++++++++++++++++++++++++++++

壁紙は、扉ラメ入りベージュ色、クリスタルカウンターと
コーディネートした、エレガントな花柄を前面に貼りました。

写真ではわかりにくいですが。。サンゲツ壁紙。
淡いブルーとベージュの花柄。エンボスが光沢が有り美しい壁紙です。
。。。。。。。。。。
洗面室とバスルームと共に、ラグジュアリー空間へと完成です。


。。。。Before。。。。

さすが、ハイクラスのトイレシリーズ。
ショールームのようなトイレ空間になりました。
:::::::
ブログランキングに参加しています。
ボタン↓↓↓ ぽちっと押してくださると嬉しいです。

++++++++++++++++++++++++++++++++++++++++++++++++++++++
Construction by:Best Planning Corporation ■
++++++++++++++++++++++++++++++++++++++++++++++++++++++
rises インテリアデザイン室
http://rises.jimdo.com/
rises.keiko@gmail.com
www.facebook.com/rises.INTERIOR
リフォームプラン・造作家具&収納設計・risesサロン・施工手配管理
++++++++++++++++++++++++++++++++++++++++++++++++++++++
コメント